Stay Informed
Stay Informed | SIGN UP TODAY!
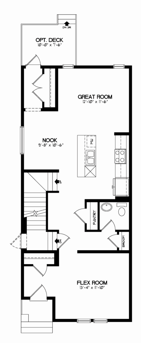
MAIN FLOOR
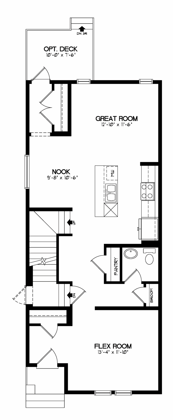
UPPER FLOOR
Goes here.
Stay informed about community updates, exclusive promotions, and contest details.