HOME MODEL
Selkirk II
4 Bed
2 .5
Bath
2619 sqft
Main Floor: 1219 sqft|Upper Floor: 1519 sqft
COMMUNITIES WE BUILD THIS MODEL IN:
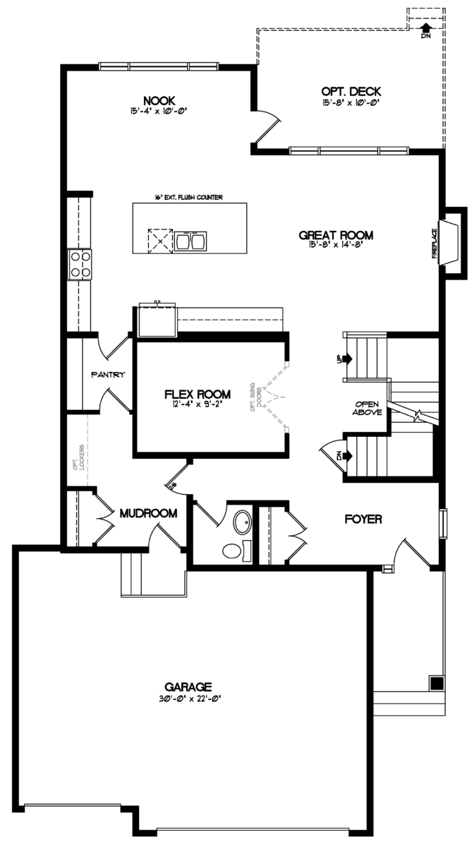
This Selkirk II offers 2738 square feet of stylish space and thoughtful touches.
The main floor features a large Chef’s Kitchen opening to the sunny Dining Nook and spacious Great Room with feature fireplace, while the welcoming Foyer leads past an open staircase to the Flex Room or Powder Room, Mudroom and handy Walk-through-Pantry.
Upstairs the spacious Master, with Walk-in-Closet and En-suite, as well as 3 more Bedrooms all surround the Full Bath, Laundry, and Bonus Room.
This home is ideal for large families, entertaining, or anyone who loves to make a special space their own!
-
2 Storey
-
1 Half Bath
-
4 Bedrooms
-
Double Garage
-
2 Bathrooms
-
A wide selection of durable maple hardwood flooring
-
Tile flooring in all wet areas
-
Modern and contemporary staircase rail choices
-
9′ high main floor ceilings for spacious interiors
-
Contemporary feature fireplaces
-
Energy-saving supreme vinyl windows for a healthier environment
-
KitchenAid stainless steel appliances fit for the most serious home cook
-
Designer Moen faucets – 5 lines to choose from
Expect more when you buy a Broadview Home. Offering premium finishes, modern features, a 10-year structural warranty, and meticulously crafted details for your custom dream home, we bring you more value and quality in every home.
Spec PDF
Goes here.
Brochure
Goes here.
3D Tour
This Selkirk II offers 2738 square feet of stylish space and thoughtful touches.
The main floor features a large Chef’s Kitchen opening to the sunny Dining Nook and spacious Great Room with feature fireplace, while the welcoming Foyer leads past an open staircase to the Flex Room or Powder Room, Mudroom and handy Walk-through-Pantry.
Upstairs the spacious Master, with Walk-in-Closet and En-suite, as well as 3 more Bedrooms all surround the Full Bath, Laundry, and Bonus Room.
This home is ideal for large families, entertaining, or anyone who loves to make a special space their own!
-
2 Storey
-
1 Half Bath
-
4 Bedrooms
-
Double Garage
-
2 Bathrooms
-
A wide selection of durable maple hardwood flooring
-
Tile flooring in all wet areas
-
Modern and contemporary staircase rail choices
-
9′ high main floor ceilings for spacious interiors
-
Contemporary feature fireplaces
-
Energy-saving supreme vinyl windows for a healthier environment
-
KitchenAid stainless steel appliances fit for the most serious home cook
-
Designer Moen faucets – 5 lines to choose from

